Gesundheitszentrum Gransee
Neubau, Umbau und Modernisierung | Wettbewerb 1. Preis und Beauftragung
Neubau, Umbau und Modernisierung | Wettbewerb 1. Preis und Beauftragung
Städtebau
Das Grundstück ist eingebunden in eine mittelalterliche Stadtanlage mit traufständiger Blockrandbebauung. Die Gebäude sind zwei- bis viergeschossig und zeigen zur Straße in der Regel eine strenge horizontale Gliederung durch Differenzierung von Erdgeschoss, Obergeschossen und Dach. Trauf- und Firstkanten verspringen häufig.
Der vorliegende Entwurf führt diese Motive fort, variiert sie jedoch leicht durch eine Reduzierung der Formensprache. Damit fügt sich die Fassade in die kleinteilige Umgebung ein, ohne jedoch den eigenen zeitlichen Kontext zu verleugnen. Der Neubau nimmt sowohl die Geschoßhöhen als auch Trauf- und Firsthöhe des Bestandsgebäudes auf. Ein Höhenversatz im Dach vermittelt zur Nachbarbebauung. Zusammen mit der größeren Breite der Parzelle und der höheren Fassade des einzubindenden Bestandsgebäudes definiert die Einheit die übergeordnete öffentliche Funktion des Gesundheitszentrum.
Planung und Funktion
Der Neubau ist nicht unterkellert, um Kosten für aufwendige Konstruktionen und Abfangungen in diesem sensiblen Umfeld zu vermeiden.
Der Altbau wurde im Rahmen tragwerksplanerischer und brandschutztechnischer Erfordernisse saniert.
Am westlichen Ende des Neubaus befindet sich der Haupteingang mit Treppe und Aufzug zu den Praxen in den beiden Obergeschossen. Der Haupteingang ist sowohl von der Rudolf-Breitscheid-Straße als auch vom Hof mit den Stellplätzen barrierefrei zu erreichen. Die Treppe im Altbau steht den Mitarbeitern zur Verfügung. Sie bindet das Dach- und Untergeschoß des Altbaus an und bietet eine interne Verbindung der Praxisgeschosse.
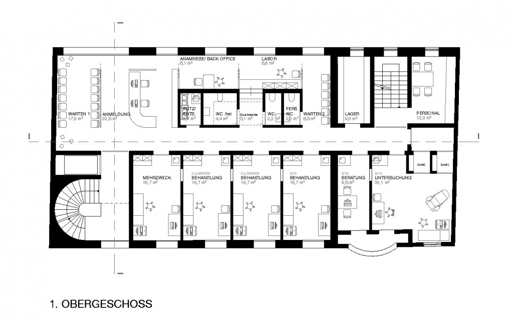
Die medizinisch genutzten Flächen für die vier Praxen befinden sich im ersten und zweiten Obergeschoß. Die beiden Etagen sind weitgehend identisch strukturiert. Im 1.OG befinden sich die gynäkologische und eine internistische Praxis, im 2.OG eine urologische Praxis sowie eine Kinder- und Jugend-Psychotherapie. Die offene und lichte Anordnung von Hauptwartebereich und Anmeldung bildet den Empfangsbereich. Eine frei stehende schallschutzwirksame Trennwand bietet die notwendige Vertraulichkeit.
Darüber hinaus bietet ein kleiner Rückraum die Möglichkeit für Patientengespräche, Anamnesen, Telefonate oder Diktate. Die Behandlungsräume befinden sich entlang der Straßenseite im Neu- und Altbau. Um eine Mittelinsel mit WCs und Putzraum gruppieren sich an der Hoffassade ein an den Anmeldetresen angebundener Rückraum mit internen Funktionen wie Labor oder das bereits beschriebene Backoffice sowie ein weiterer Wartebereich. Dieser ist insbesondere im 1.OG geeignet, die übliche Separierung gynäkologischer und allgemeiner Patientinnen und Patienten zu ermöglichen.
Größe
970m² BGF Neubau
1.230m² BGF Bestand
Zeit
09/2017 Abgabe Wettbewerb
„Ärztehaus Gransee“
10/2017 1. Preis
06/2018 Beauftragung
10/2019 Baubeginn
06/2021 Fertigstellung 1.BA
05/2024 Fertigstellung 2.BA
Bauherr
Amt Gransee und Gemeinden

Diakoniekrankenhaus Friederikenstift Hannover